Barn Cabin Plans

Post layout roof framing detail loft framing plans joinery details steel plate specs your barn plans also include an e guide titled how to build your post and beam barn.

Barn cabin plans. We give you the plans for the basic barn shell with a loft or full second floor. The traditional sugar house was a small cabin where springtime sap was collected from sugar maple trees and then boiled into maple syrup. The reason is that it packs 23 pole barn plans into one easy to sort through space.

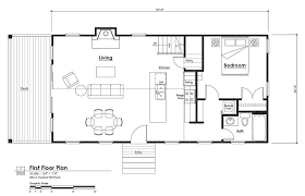
Use one of the free cabin plans below to build the cabin of your dreams that you and your family can enjoy on vacation the weekends or even as a full time home. The plans include blueprints step by step building directions photos and materials cutting lists so you can get right to work building your cabin. Modern farmhouse style.

The plans range from an attractive two story gambrel horse barn to a two story gambrel garage shop to a beautiful two story gambrel barn home with up to 4320 square feet or more of total floor space all with our unique engineered clear span gambrel truss design. Whatever works for you you can hopefully find here. We ve borrowed from this charming architectural form with its humble origins to create comfortable homes.

Build this cabin 7. Basically whatever size economical cabin you are looking for they are most likely in these plans. There are multiple plans here.

Barn house plans feel both timeless and modern. If you re only wanting to dip slightly into the barn house appeal with a shiplap exterior and a wrap around porch then a more contemporary barn house might suit you. If you love a frame cabins smaller cabins or even maybe a medium sized 5 room cabin then these plans might be right up your alley.

Small barn house plans are here. Your barn plans contain 10 or more pages including. Build this barn 68 85.

We invite you to. Though these barn house floor plans are similar to the farmhouse category their exteriors and interiors vary greatly. Barn style house plans feature simple rustic exteriors perhaps with a gambrel roof or of course barn doors.

Pole barn cabin plans get started their website has enough information for both one man this instant. Some might call these pole barn house plans although they do have foundations unlike a traditional pole barn. All the homes shown here are under 2650 square feet some as small as 1142.

Elevation drawings 3d frame drawings bent details 2 3 pages this is the major framework of the barn. Multiple cabin plans by north dakota state university. Designing a pole barn cost guide provides prices for sale.

You can decide if you want a traditional style pole barn which is what we chose or you can go for one that is a little non traditional meaning a garage style. We ve noticed how popular our barn house plans and barn home plans blog posts are so we wanted to give those of you requesting smaller ybh house plans a post of your own.

Source : pinterest.com