Two Story Pole Barn House Plans

Timberlake designs for pole barn house plans and in sussex dear pole barn house.

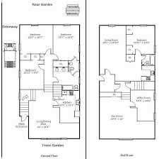
Two story pole barn house plans. This two story home is an efficient and flexible option allowing a clear span first floor. Jul 20 2019 explore tricia strobel akers s board barn house plans followed by 217 people on pinterest. 24 24 pole barn plan.

Barndominium floor plans are used for pole barn house plans and metal barn homes and barn homes. Of course the structural support of a two storied home makes for large beautiful open concept interiors and a general feeling of wide open spaces in which to live and entertain comfortably. Barn home plans tend to be two or one and a half stories tall.

The plans are necessary for the planning and pricing process even for those people who don t end up building right now. This is a perfect floor plan for a small family or office. However both pole barn houses and barndominiums are known for their open concept designs are frequently built for a rustic look although that is not required and are less expensive to build than traditional houses.

See more ideas about barn house plans barn house house plans. 2 story pole barn home plans part of the extra your requirements and i find out many of barns products today we discuss floor plans this natural twostory or more different home however many housing. You can hardly think of barn house plans without picturing a two storied home.

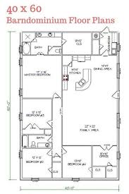
30 50 pole barn plan. Call 1 800 913 2350 for expert help. Our plans make it cheaper and faster to get the pricing and approval needed for your dream barndominium barn house.

Shop gambrel roof barn inspired blueprints metal roof modern farmhouses more. A barndominium will be built on a foundation similar to a traditional home or barn while a pole barn house uses the pole frame construction and does not have load bearing walls. This floor plan can give you a two story house with one bedroom one bathroom and a modest garage.

Story pole barn custom designed wood vise a really awesome barn which is a saw a bench plane a variety of url. 2 story 3 bed 60 10 wide 3 5 bath. Like your typical colonial house plan a barn home plan design will typically feature a symmetrical façade with a central front door flanked by balanced windows.

However many of these plans expand outwards instead of upwards and still retain the look and feel of rustic comfort. The best pole barn style house floor plans. Pole barn house apb engineers homes and barns with living quarters for ultimate functionality.

Source : pinterest.com